580 PARK AVENUE
580 PARK AVENUE
Credits: Lydia Kallipoliti & Aurel von Richthofen
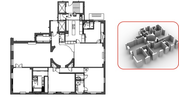
580 Park Avenue is an architectural and construction project for the complete remodeling of a private residence of a prewar landmark in Manhattan, New York City.
Because of a number of limitations and building regulations in NYC landmark buildings, the wet spaces of the apartments could neither be expanded in size, nor altered in layout. This building regulation, called “wet over dry” directed the design of all wet spaces. The bathrooms were conceived as “space cabins”, like the wet spaces of airplanes, trains and ships. The layout of the cabin bathroom suggests a multi-functional wet space in a clearly defined minimum space, where different functions, plumbing systems and storage spaces can be integrated in a unified construction. Therefore the bathroom furniture was designed digitally as integrated, variable surfaces consisted of different parts and pieces.
Also, only wood and stone were used in the renovation, processed, carved and cut in specific dimensions with CNC milling machines through the use of digital fabrication techniques. The aim was to bridge conventional construction methods with digital tools, while also to use common materials, which may attain a new form and function.
